Udlejningsejendom med et erhverv og 7 boligenheder som er fuldt udlejet, og har en central beliggenhed i Fredericia.
Blue-Estate Erhvervsmægler kan nu tilbyde Gothersgade 29, i Fredericia.
Ejendommen har en særdeles god beliggenhed, centralt i byen, lige overfor Fredericias kommune kontor på gågaden. Det er også grundet ejendommens attraktive beliggenhed, at restauratørerne Niso Sushi har lejet sig ind. De blev lejere i 2019, her blev der i forbindelse med deres indflytningen istandsat for over 1.5 millioner kr. i lejemålet.
Yderligere er der i ejendommen 7 boliger hvoraf 4 er regulære lejligheder, og 3 er fungerende værelser med fælles bad og køkken. Lejlighederne i ejendommen fremstår af ældre dato, dog er alle installationer skiftet som gør det nemt at optimere og modernisere. Der er i ejendommen minimal tomgang og flere af ejendommens lejere har boet længe i ejendommen. Der er netop sket en udflytning i lejligheden 1.sal th. Denne lejlighed er nu ved at gennemgå en lettere renovering forud for genudlejning.
Ejendommen har i 2023 gennemgået en totalrenovering, hvoraf bagbygningen som huser 2 lejemål bl.a. har fået isat komplet nye 3-lags energivinduer i hele bygningen inkl. kælder, isat komplet nye facadedøre, og fået oprettet nyt tag med ny tagpap som er efterisoleret. Yderligere er der sket reparation af samtlige fuger samt maling af facaden. Bygningen er blevet hulmurisoleret, og sokkel samt kælderskakt er pudset op på ny.
Hovedbygningen har også fået en lille tur, hvor der bl.a. er kommet nye 3-lags vinduer i hele bygningen, på nær tagvinduer. Yderligere er der kommet opretning af tag ved restaurant samt ny tagpap på hele tagkonstruktionen.
Lejemålsdata i ejendommen:
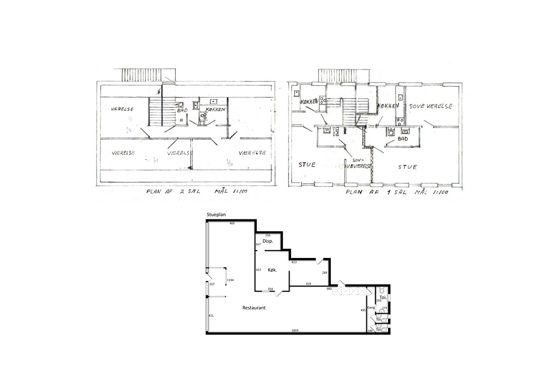
Stuen 199 m2: Erhvervslejemål udlejet til Niso Sushi siden 2019. Lejemålet er gennemgribende renoveret, med alt hvad der er nødvendigt for drift af en større restaurant. Lejerne har yderligere ca. 20 m2 depot til lejemålet.
1.sal tv 76 m2: Lejligheden består af flere værelser, køkken og badeværelse. Lejligheden er udlejet til personalet til Niso Sushi. - Lejlighedens stand er slidt.
1.sal th 59 m2: 2 værelser, køkken og badeværelse.
2.sal - Værelser 3 stk: I alt 3 værelser som alle er udlejet med tilhørende fælles badeværelse og køkken. Værelserne vil være oplagte til sammenlægning såfremt tilladelse kan gives. - Standen er slidt
29A, Stuen 52 m2: Lejligheden har været udlejet til samme lejer siden 2016.
29A, 1.sal 52 m2: Lejligheden har været udlejet til samme lejer siden 2015.
Vi kan altid kontaktes på tlf. +45 70 60 29 99, der er både mulighed for fysisk og digital fremvisning.

Nicolas Lund Madsen
Erhvervsmægler & Indehaver
Tlf. +45 30 15 29 99
E-mail
Nørre Voldgade 30
7000 Fredericia