Gimbels Gyde 2A, 5500 Middelfart
DK-Estate Erhvervsmægler kan nu tilbyde et nybygget erhvervslokale på Gimbels Gyde i Middelfart.
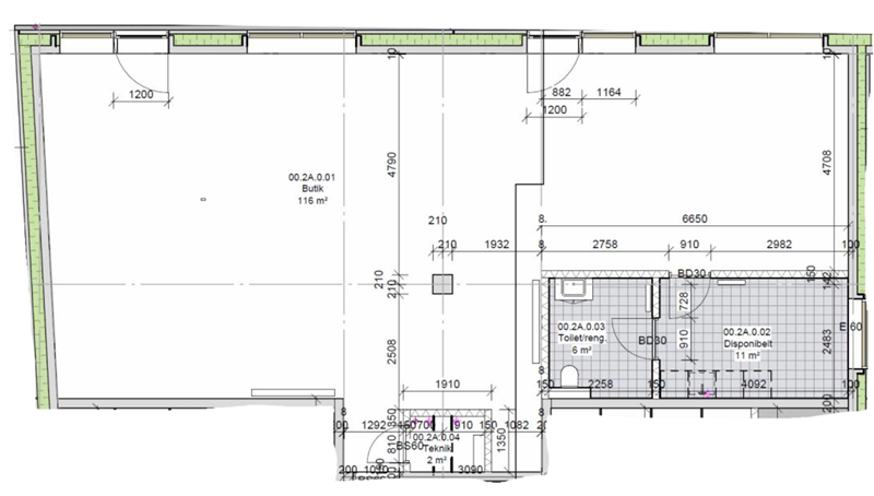
Erhvervslejemålet er beliggende i en større udlejningsejendom og udgør 171 m2. Ejendommen tilbyder et større grundareal, med gode parkeringsmuligheder.
Lokalet har adressen Gimbels Gyde 2A som fremstår ny bygget, og er færdigstillet og klar til udlejning i starten af Januar. Her er højt til loftet, lyst og indbydende, der tilhører desuden et nyt toilet og køkken. Som giver en masse muligheder til anvendelsen af lokalet.
Overalt er der gode lysforhold pga. store vinduespartier samt lyse væge. Lejemålet har en perfekt opdeling til en bred anvendelse som f.eks. Kontor, Cafe, frisør, klinik eller lignende.
Vi kan altid kontaktes på tlf. +45 70 60 29 99, der er både mulighed for fysisk og digital fremvisning.
Tekniske specifikationer
| Type: Erhvervs udlejning |
Pris pr. mdr + moms, forbrug & drift: Kr. 22.800, -
|
Anvendelse: Kontor, Butik, Frisør o.l. |
| Sagsnr.: 193-1337U |
Samlet areal: 171 m2 |
Køkken & Toilet: Ja |
| Pris pr. år + moms, forbrug & drift: Kr. 273.600, - |
Drift pr. m2: Ca. Kr. 30, - |
Pris pr. m2: Kr. 1.600, - |
Billeder udenfor
Inspirationsbilleder & plantegning

Nicolas Lund Madsen
Erhvervsmægler & Indehaver
Tlf. +45 30 15 29 99
E-mail
Prinsessegade 39A
7000 Fredericia